Nous utilisons les cookies analytiques pour effectuer une analyse statistique du trafic Web et améliorer les interactions avec les utilisateurs. Vous pouvez configurer ou accepter les cookies, conformément à notre politique de cookies.

Données d'identification du travail

Cliquez sur le bouton En savoir plus pour vous inscrire et consulter maintenant toutes les données de ce projet: phase du travail, fournisseurs, matériaux, contacts, images, etc. Vous pouvez également voir un exemple d'onglet complet dans le bouton Voir exemple

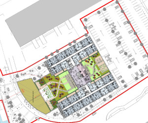
Brunswick Way

Pays: Royaume-Uni
Adresse: Liverpool, Liverpool
Ce travail est classé comme: Parking / Centre ou Espace commercial / Immeubles / Intervention urbaine
Description / Caractéristiques générales: